Leave a Message

Thank you for your message. We will be in touch with you shortly.

Explore Our Properties

Property Description

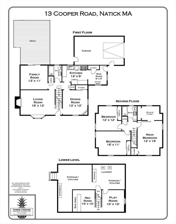
Don't miss this move-in ready 3 bed/2 full bath expanded Cape with all of the charm & space you have been looking for in a convenient East Natick commuter location! Enjoy a bright, spacious, fireplaced living room w/bay window, a formal dining room w/built-in china cabinet, bright white kitchen w/plenty of counter space & large pantry/closet in adjacent mudroom area w/covered access to the one car garage. There is a full bath on this level & the rear family room has sliders out to the oversized deck, patio & level, fenced-in backyard w/professional enclosed garden area for the gardening enthusiast! Upstairs there are two generously sized bedrooms, a full bath & front-to-back primary w/recently added walk-in closet! Basement level has two separate finished areas for play & recreation - including a built-in bar area! - & plenty of storage space. Other recent updates include new mini-splits & central a/c, updated flooring, new roof & gutter guards! A true gem!

Overview

Property Status
Sold
Lot Size
9,378 Sq.Ft.
MLS ID
73472801
Property Type
Residential
Year Built
1950

Features & Amenities

Total Area
1,881 Sq.Ft.
Architecture Styles
Cape
Garage Spaces
1.0
Water Source
Public
Utilites
for Gas Range, for Electric Dryer, Washer Hookup
Roof
Shingle
Lot Features
Corner Lot, Level
Parking
Attached, Garage Door Opener, Garage Faces Side, Paved Drive, Off Street, Paved
Heat Type
Central, Baseboard, Natural Gas, Ductless
Air Conditioning
Central Air, Ductless
Laundry Room
In Basement, Electric Dryer Hookup, Washer Hookup
Appliances
Gas Water Heater, Tankless Water Heater, Range, Dishwasher, Disposal, Refrigerator, Washer, Dryer, Range Hood
Other Interior Features
Play Room, Game Room
Sewer
Public Sewer
Substructure
Concrete Perimeter
Security Features
Security System
Other Exterior Features
Deck, Patio, Storage, Fenced Yard, Garden
Elementary School
Lilja
Middle School
Wilson
High School
Natick High
Sales Price
$835,000
Real Estate Tax
$7,776/yr
Zoning
RSC

Downloads

13 Cooper Rd

Schedule a Tour

I would love to help you see this beautiful home! As a full-service agent, I can help you tour. Please submit an offer, and answer questions about the buying process.

Thank you

for your interest in 13 Cooper Rd, Natick, MA 01760

13 Cooper Rd
Navigate

I'm Interested In

13 Cooper Rd

or
  • CallEdward Gaeta

    License #9566478

    (781) 258-6976
  • Follow Me on Instagram